inkl. MwSt.
kostenl. Streckenversand (DE)
Versandkostenfreie Lieferung (DE)
Lieferzeit 1-5 Tage**
- Artikel-Nr.: 60003094
- Herstellernummer: Z029955
Produktinformationen "Viessmann Vitodens Pak 222-F Gas Brennwert B2TH 25kW Z029955 Ladespeicher 100L u. Anbausatz oben"
Lieferumfang:
- 1 x Viessmann Gastherme
- 1 x Viessmann Bedieneinheit (Regelung) HMI 600 mm
- 1 x Viessmann Beipack Aussentemperatursensor
- 1 x Viessmann TU-Set Vitodens
- 1 x Viessmann Anbausatz oben Aufputz VD
Beschreibung:
- Brennwertkompaktgerät für Erd- und Flüssiggas nach EN 677
- mit integrierter Trinkwassererwärmung
- geeignet für Einfamilien- und Reihenhäuser
- Standgerät für raumluftunabhängigen oder für raumluftabhängigen Betrieb nach TRGI
- CE-zertifiziert und bauartgeprüft
- mit angebauter Kesselverkleidung aus Stahlblech epoxidharzbeschichtet
- Ladespeicher 100 Liter aus Stahl mit Ceraprotect-Emaillierung und Magnesium-Schutzanode
- Wärmedämmung aus PU-Schaum
- MatriX-Plus-Brenner mit drehzahlgeregeltem Gebläse, Gaskombiregler und elektronischer Verbrennungsregelung Lambda Pro Plus
- Regelung mit 3,5 Zoll Schwarz/Weiß-Display und integrierter WLAN-Schnittstelle
- Außentemperatursensor leitungsgebunden
- Hydraulikeinheit mit Multistecksystem
- Sicherheitsarmaturen eingebaut
- Plattenwärmetauscher zur Nachladung des Trinkwasser-Ladespeichers
- drehzahlgeregelte Hocheffizienz Umwälzpumpe und 3-Wegeventil
- Ausdehnungsgefäß 18 Liter
- anschlussfertig verrohrt und verdrahtet
- inkl. Kesselanschlussstück
- mit witterungsgeführter, digitaler Kessel- und Heizkreisregelung für den Betrieb mit gleitend abgesenkter Kesselwassertemperatur
- für Heizungsanlagen mit einem direkt angeschlossenen Heizkreis ohne Mischer und/oder in Verbindung mit je einem Erweiterungssatz für 1 oder 2 Heizkreis(e) mit Mischer (Zubehör)
- für den Heizkreis (ohne Mischer) mit hydraulischer Weiche und Heizkreispumpe ist eine Erweiterung (Zubehör) erforderlich
- mit zwei Pumpenausgängen für einer Speicherladepumpe (werkseitig angeschlossen), eine sekundäre Heizkreispumpe oder eine Trinkwasserzirkulationspumpe (abhängig vom Hydraulikschema)
- Zeiträume für die Heizkreise, Trinkwassererwärmung und Zirkulation des Trinkwassers getrennt einstellbar
- mit Speichertemperaturregelung
- erhöhte Trinkwasserhygiene durch Aufheizen auf einen erhöhten Trinkwassertemperatursollwert möglich
- mit automatischer Sommer-/Winterzeitumstellung
- integriertes Diagnosesystem
- Wartungsmeldung und kontrollierter Estrichtrocknung mit Wirkung auf alle Heizkreise
- Einstellungen für Betriebsarten, Länger-Warm-Betrieb, Ferienprogramm, Ferien-zu-Hause-Programm, Schornsteinfegerprüfung, bedarfsabhängige Heizkreispumpen und Brennerabschaltung, sowie Sommersparbetrieb und variable Heizgrenze
- Möglichkeit zur Einstellung der Raumtemperatur (3 Raumtemperatur-Niveaus), der Trinkwassertemperatur und zur Abfrage von Temperaturen
- integrierter Wasserdrucksensor zur Messung des Anlagendrucks mit einstellbarem Anlagenvorlauftemperatursollwert und Diagnose
Einfache Bedienung über:
- 3,5-Zoll-Schwarz/Weiß-Display mit großer Schrift und kontextbezogener Hilfe
- kommunikationsfähig über CAN-BUS, PlusBus, WLAN und Low-Power-Funk
- Funk-Modul integriert in das Gerät
- Fernbedienung und Überwachung des Geräts über Smartphone mit der ViCare App in Verbindung mit integrierter Internetschnittstelle und bauseitigem Internetzugang über WLAN möglich
- Anschluss externes Betriebsprogramm mit Wirkung auf alle Heizkreise oder externes Sperren über Erweiterung als Zubehör über PlusBus möglich
- externe Vorgabe Temperatur-Sollwert (variabel) über 0 bis 10 V-Schnittstelle (Zubehör) möglich
- Verriegelung externer Abluftgeräte, Anschluss eines externen Flüssiggasventils (Zubehör) möglich
- über die Viessmann CAN-Datenschnittstelle ist der Anschluss des WAGO Gateways (Zubehör) möglich
Anbausatz:
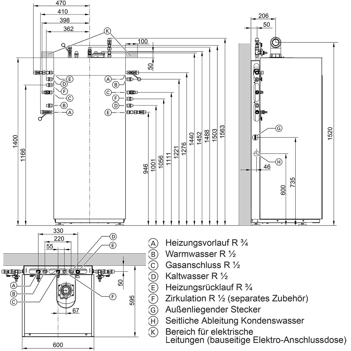
- Anschluss-Set für die Aufputzinstallation nach oben
- Anschlussrohre
- Absperrarmaturen für Heizwasservorlauf und -rücklauf mit KFE-Hahn
- 2 x Anschlussstücke für Trinkwasser
- Gasabsperrhahn mit thermischem Sicherheitsabsperrventil
- Gasanschluss: R1/2"
- Heizwasseranschluss: R3/4"
- Trinkwasseranschluss: R1/2"
- Hersteller: Viessmann
Technische Daten:
- Nennwärmeleistung 50/30 °C: 2,5 - 25,0 kW
- Nennwärmeleistung 80/60 °C: 2,2 - 23,0 kW
- Nennwärmeleistung bei Trinkwassererwärmung: 2,2 - 28,6 kW
- Nennwärmebelastung (Qn): 2,3 - 23,4 kW
- Nennwärmeleistung bei Trinkwassererwärmung (Qnw): 29,5 kW
- Gasanschlussdruck Erdgas: 20 mbar / 2 kPa
- Gasanschlussdruck Flüssiggas: 50 mbar / 5 kPa
- Gasanschlussdruck Erdgas max.: 25,0 mbar / 2,5 kPa
- Gasanschlussdruck Flüssiggas max.: 57,5 mbar / 5,75 kPa
- Schallleistungspegel Teillast: 38,8 dB(A)
- Schallleistungspegel Trinkwassererwärmung: 50,7 dB(A)
- Nennspannung: 230 Volt
- Nennfrequenz: 50 Hz
- Geräteabsicherung: 6,3 A
- Vorsicherung (Netz): 16 A
- RF-Modul: eingebaut
- Frequenzband WiFi: 2400 - 2483,5 MHz
- Sendeleistung max.: 17 dBm
- Frequenzband Low-Power Funk: 2400 - 2483,5 MHz
- Sendeleistung max.: 6 dBm
- Versorgungsspannung: 24 Volt DC
- Leistungsaufnahme: 4 Watt
- Einstellung elektronischer Temperaturwächter (TN): 91 °C
- Einstellung elektronischer Temperaturbegrenzer: 110 °C
- Zul. Betriebsdruck heizwasserseitig (PMS): 3 bar / 0,3 MPa
- Inhalt Ladespeicher: 100 Liter
- Zul. Betriebsdruck trinkwasserseitig (PWM): 10 bar / 1 MPa
- Spezifischer Wasserdurchfluss: 23,84 l/h
- Trinkwassertemperatur max.: 60 °C
- Kondenswassermenge max.: 4,1 l/h
- Norm-Nutzungsgrad: bis 98 % (Hs)
- Energieeffizienzklasse Heizen: A
- Energieeffizienzklasse Trinkwassererwärmung Zapfprofil XL: A
- Energieverbrauch jährlich: 10723 kWh
- Jährlicher Stromverbrauch: 58 kWh
- Kondenswasseranschluss (Schlauchtülle): Ø 20 - 24 mm
- Abgasanschluss: Ø 60 mm
- Zuluftanschluss: Ø 100 mm
- Gasanschluss: R 3/4"
- Produkt-ID-Nummer: CE-0085CT0017
- Schutzart Raumluftunabhängiger Betrieb: IP X4 gemäß EN 60529
- Schutzart Raumluftabhängiger Betrieb: IP X0 gemäß EN 60529
- Länge: 595 mm
- Breite: 600 mm
- Höhe: 1400 mm
- Gewicht ohne Heizwasser: 111,5 kg
- Farbton: Vitopearlwhite (Weiß)
- Serie: Vitodens 222-F
- Typ: B2TH
- Hersteller: Viessmann
- Artikel-Nr.: Z029955 Nachfolger von Z019735
Herstellerinformationen:
Viessmann Climate Solutions SE
Viessmannstraße 1
35108 Allendorf
Deutschland
E-Mail: info@viessmann-climatesolutions.com
| Speicherinhalt: | 100 Liter |
| Komplettpaket: | ja |
| Gasart: | Erdgas E, Erdgas LL, Flüssiggas |
| Leistung: | 25 kW |
| Abgassystem: | ohne |
Weiterführende Links zu "Viessmann Vitodens Pak 222-F Gas Brennwert B2TH 25kW Z029955 Ladespeicher 100L u. Anbausatz oben"
Verfügbare Downloads:
Allgemeine Sicherheitshinweise: Zur Vermeidung von Personen- und Gesundheitsschäden dürfen Montage, Erstinbetriebnahme, Inspektion, Wartung und Instandsetzung nur durch autorisiertes Fachpersonal (Fachbetrieb oder Installateurunternehmen der Heizungs- / Sanitärbranche) erfolgen!
Bestimmungsgemäße Verwendung:
Bitte beachten Sie generell bei Installations- und Montagearbeiten die beigefügten Einbau-, Bedienungs- und Wartungsanleitungen sowie die Produkt- und/oder Systemzulassungen aller Anlagenkomponenten. Beispielsweise ist es bei Wärmeerzeugern regelmäßig der Fall, dass nur für diese Heizung zugelassene Abgasanlagen verwendet werden dürfen. Zur bestimmungsgemäßen Verwendung gehört auch die Einhaltung der Inspektions- und Wartungsbedingungen, die ebenfalls in den oben genannten Unterlagen enthalten sind.
Elektroheizgeräte und Durchlauferhitzer mit Starkstromanschluss (400 V) dürfen nur durch den jeweiligen Netzbetreiber oder durch ein in das Installateurverzeichnis des Netzbetreibers eingetragenes Installationsunternehmen installiert werden!
Elektrogeräte mit Drehstromanschluss (3~/400 V) und "nicht steckerfertige Geräte" müssen von einem Fachbetrieb installiert werden. Geräte mit einer Nennleistung von mehr als 12 kW bedürfen vor der Erstinstallation der Zustimmung des Netzbetreibers.
Die Installation, Inspektion, Wartung und Reparatur von Gasgeräten sowie Gaseinstellungen selbst dürfen nur von einem Fachhandwerker durchgeführt werden!
Bei der WEEE Nummer handelt es sich um die vergebene Registriernummer, die als Nachweis der im Herstellungsland vorgenommenen Registrierung des Herstellers, der Marke und der elektrischen oder elektronischen Geräteart gilt. Sie dient damit gleichzeitig der Identifizierung des Herstellers.