inkl. MwSt.
kostenl. Streckenversand (DE)
Versandkostenfreie Lieferung (DE)
Lieferzeit 14 - 28 Tage
- Artikel-Nr.: 10036517
- Herstellernummer: Z026430
Produktinformationen "Viessmann Vitocal 150-A Luft-Wasser-Wärmepumpe 4,0kW Z026430 Monoblock AWO-M-E-AC 151.A04"
Lieferumfang:
- 1 x Viessmann Inneneinheit IDU Vitocal 150-A AWO-E-AC 151.A16
- 1 x Viessmann Außeneinheit ODU Vitocal 15X-A 230V A04
- 1 x Viessmann Beipack Elektrik Außeneinheit ODU 230V
- 1 x Viessmann Anschlussset Typ 1
- 1 x Viessmann technische Unterlagen
Beschreibung:
- modulierende Wärmepumpe in Monoblock-Ausführung bestehend aus Außen- und Inneneinheit für Raumbeheizung/-kühlung und Trinkwassererwärmung
- geringe Betriebskosten durch hohen COP (Coefficient of Performance)
- Leistungsregelung und DC-Inverter für hohe Effizienz im Teillastbetrieb
- eine maximale Vorlauftemperatur bis 70 °C bei einer Außentemperatur von -10 °C ermöglicht den Einsatz sowohl im Neubau als auch in der Modernisierung
- selbstoptimierende Regelung des Volumenstroms über Viessmann Hydro AutoControl
- Umweltfreundliches, natürliches Kältemittel R290 mit einem besonders niedrigen GWP von 0,02 (GWP = Global Warming Potential)
- komfortabel durch reversible Ausführung für Heizen und Kühlen
- besonders leise im Betrieb durch Advanced acoustics design+ (AAD+)
- internetfähig durch integriertes WLAN oder LAN
- Bedienung, Optimierung, Wartung und Service über ViCare App und ViGuide
- geführte Inbetriebnahme über ViGuide
- Einzelraumregelung mit Komponenten aus ViCare Smart Climate (Zubehör)
- witterungsgeführte Regelung mit optionaler Raumaufschaltung mit Vitotrol Fernbedienung (Zubehör)
Inneneinheit:
- eingebautes 4/3-Wege-Ventil Heizen/Trinkwassererwärmung/Bypass
- eingebaute Hocheffizienz-Umwälzpumpe für den Sekundärkreis
- eingebauter Heizwasser-Durchlauferhitzer
- eingebauter Pufferspeicher 16 Liter
- eingebautes Sicherheitsventil und Digital-Manometer
- Volumenstromerfassung
- mit Membran-Druckausdehnungsgefäß 10 Liter
- mit witterungsgeführter digitaler Wärmepumpenregelung mit Außentemperatursensor (leitungsgebunden)und steckbarer Anschlussverrohrung aus Kupfer (Glattrohr)
- mit Montageschiene zur Befestigung der Inneneinheit an der Wand
- für Heizungsanlagen mit bis zu 4 Heiz-Kühlkreisen
- enthält Anlagenschalter, Maximaltemperaturbegrenzer, Temperaturwächter und Temperaturbegrenzer, Betriebs- und Störungsanzeige
- 7-Zoll-Farb-Touchdisplay mit Klartext- und Grafikanzeige
- Inbetriebnahme-Assistent
- kontextbezogener Hilfe
- Anzeigen für Energieverbräuche sowie alternativ Bedienung über mobiles Endgerät
- mit im Gerät integriertem Kommunikationsmodul
- kommunikationsfähig über CAN-BUS, PlusBus, WLAN, LAN (Zubehör)
- Fernbedienung und Monitoring des Geräts über Smartphone mit der ViCare App in Verbindung mit integrierter Internetschnittstelle und bauseitigem Internetzugang über WLAN oder LAN möglich
- Zeiträume für den Heizkreis oder Heiz-/Kühlkreis, Trinkwassererwärmung und Zirkulation des Trinkwassers getrennt einstellbar
- zyklischer Taktbetrieb für Trinkwasserzirkulation einstellbar
- mit Speichertemperaturregelung
- erhöhte Trinkwasserhygiene durch Aufheizen auf einen erhöhten Trinkwassertemperatur-Sollwert möglich
- automatische Sommer-/Winterzeitumstellung und kontrollierter Estrichtrocknung
- Einstellungen für Betriebsarten, Party-Mode, Ferienprogramm, Ferien-zu-Hause-Programm, bedarfsabhängige Heizkreispumpen sowie Sommersparbetrieb und variable Heizgrenze
- Ansteuerung eines zusätzlichen Wärmeerzeugers, z. B. Öl-/Gas-Heizkessel (Zubehör)
- Hybrid Pro Control in Verbindung mit einem zusätzlichen Wärmeerzeuger (Zubehör)
- Möglichkeit zur Einstellung der Raumtemperatur (3 Raumtemperatur-Niveaus) und der Trinkwassertemperatur und zur Abfrage von Temperaturen
- Smart Grid Regelfunktion EVU-Sperre, geräuschreduzierter Betrieb und Notbetrieb
- integrierter Wasserdrucksensor zur Messung des Anlagendrucks
Außeneinheit:
- mit DC-Inverter-Technologie zur stufenlosen Leistungsregelung, für einen optimalen Betrieb unter allen Betriebsbedingungen
- Geräusch- und schwingungsarm durch drehzahlgeregelten Doppelrollkolben-Verdichter
- mit 4-Wege-Umschaltventil
- mit elektronischem Expansionsventil zur Erhöhung der Jahresarbeitszahl und drehzahlgesteuerten Axialventilatoren
- energieeffiziente Abtauung über Kreislaufumkehr
- Korrosionsbeständiger, wasserabweisender Verdampfer mit Blue Fin-Beschichtung und geschwungenen Verdampferlamellen zur Erhöhung der Effizienz sowie effizientem asymmetrischen Edelstahl-Plattenwärmetauscher (1.4401/1.4301) zur Wärmeabgabe an das Heizsystem
- mit integriertem Wasserfilter zum Schutz des Verflüssigers vor Verunreinigungen
- mit Kältemittel-Betriebsfüllung R290
- Montage der Außeneinheit auf Boden- oder Wandkonsole (Zubehör)
- Tragehilfe im Lieferumfang
Hinweis:
- das Kältemittel R290 ist ein leicht entflammbares Kältemittel (Sicherheitsgruppe A3 gemäß ANSI/ASHRAE Standard 34)
- Arbeiten am in der Außeneinheit verbauten Kältekreis dürfen aus Sicherheitsgründen nur durch qualifiziertes Fachpersonal erfolgen
- Verbindung zwischen Außen- und Inneneinheit mit geeigneten wassergefüllten Verbindungsleitungen (bauseits) und Anschlusssets (Zubehör) herstellen
Technische Daten:
| Leistungsdaten Heizen nach EN 14511 (A2/W35) | Nennwärmeleistung | kW | 2,5 | |||
| Drehzahl Ventilator | 1/min | 376 | ||||
| Elektrische Leistungsaufnahme | kW | 0,66 | ||||
| Leistungszahl ε bei Heizbetrieb | COP | 3,8 | ||||
| Leistungsregelung | kW | 1,8 bis 4,5 | ||||
| Leistungsdaten Heizen nach EN 14511 (A7/W35, Spreizung 5 K) | Nennwärmeleistung | kW | 4,0 | |||
| Drehzahl Ventilator | 1/min | 412 | ||||
| Luftvolumenstrom | m³/h | 1813 | ||||
| Elektrische Leistungsaufnahme | kW | 0,80 | ||||
| Leistungszahl ε bei Heizbetrieb | COP | 5,0 | ||||
| Leistungsregelung | kW | 2,1 bis 4,0 | ||||
| Leistungsdaten Heizen nach EN 14511 (A–7/W35) | Nennwärmeleistung | kW | 3,8 | |||
| Elektrische Leistungsaufnahme | kW | 1,27 | ||||
| Leistungszahl ε bei Heizbetrieb | COP | 3,0 | ||||
| Leistungsdaten Heizen nach EN 14511 (A–7/W55) | Nennwärmeleistung | kW | 3,5 | |||
| Elektrische Leistungsaufnahme | kW | 1,63 | ||||
| Leistungszahl ε bei Heizbetrieb | COP | 2,2 | ||||
| Leistungsdaten Heizen nach EU-Verordnung Nr. 813/2013 (durchschnittliche Klimaverhältnisse) | Niedertemperaturanwendung (W35) | Energieeffizienz ηS | % | 176 | ||
| Nennwärmeleistung Prated | kW | 4,0 | ||||
| Saisonale Leistungszahl | SCOP | 4,5 | ||||
| Mitteltemperaturanwendung (W55) | Energieeffizienz ηS | % | 127 | |||
| Nennwärmeleistung Prated | kW | 3,8 | ||||
| Saisonale Leistungszahl | SCOP | 3,3 | ||||
| Leistungsdaten Kühlen nach EN 14511 (A35/W7) | Nennkühlleistung | kW | 2,6 | |||
| Drehzahl Ventilator | 1/min | / | ||||
| Elektrische Leistungsaufnahme | kW | 0,90 | ||||
| Leistungszahl bei Kühlbetrieb | EER | 2,9 | ||||
| Leistungsregelung | kW | 1,8 bis 4,0 | ||||
| Leistungsdaten Kühlen durchschnittliche Klimaverhältnisse (A35/W7) | Nennkühlleistung Prated | kW | 3,0 | |||
| Saisonale Kühlleistungszahl | SEER | 3,8 | ||||
| Leistungsdaten Kühlen nach EN 14511 (A35/W18) | Nennkühlleistung | kW | 4,0 | |||
| Drehzahl Ventilator | 1/min | / | ||||
| Elektrische Leistungsaufnahme | kW | 0,85 | ||||
| Leistungszahl bei Kühlbetrieb | EER | 4,7 | ||||
| Leistungsregelung | kW | 3,2 bis 4,0 | ||||
| Leistungsdaten Kühlen durchschnittliche Klimaverhältnisse (A35/W18) | Nennkühlleistung Prated | kW | 4,6 | |||
| Saisonale Kühlleistungszahl | SEER | 4,5 | ||||
| Lufteintrittstemperatur | Kühlbetrieb | Min. | °C | 10 | ||
| Max. | °C | 45 | ||||
| Heizbetrieb | Min. | °C | -20 | |||
| Max. | °C | 40 | ||||
| Heizwasser (Sekundärkreis) | Inhalt ohne Ausdehnungsgefäß | l | 18 | |||
| Mindestvolumenstrom Wärmepumpenkreis (Abtauen) | l/h | 1000 | ||||
| Max. Vorlauftemperatur | °C | 70 | ||||
| Elektrische Werte Inneneinheit | Nennspannung | 1/N/PE 230 V~/50 Hz | ||||
| Absicherung Netzanschluss | 1 x B16A | |||||
| Absicherung intern | T 6,3 A H/250 V | |||||
| Heizwasser-Durchlauferhitzer | Heizleistung | Max. | kW | 8,0 | ||
| Stufe 1 | kW | 2,4 | ||||
| Stufe 2 | kW | 2,4 | ||||
| Stufe 3 | kW | 3,2 | ||||
| Absicherung Netzanschluss 230 V~ | 3 x B16A, 1-polig | |||||
| Elektrische Werte Außeneinheit | Nennspannung | 1/N/PE 230 V~/50 Hz | ||||
| Max. Betriebsstrom | A | 15 | ||||
| Leistungsfaktor | Cos φ | 0,99 | ||||
| Anlaufstrom Verdichter, invertergeregelt | A | < 10 | ||||
| Anlaufstrom Verdichter bei blockiertem Rotor | A | < 10 | ||||
| Absicherung | B16A | |||||
| Schutzart | IP X4 | |||||
| Max. elektrische Leistungsaufnahme | Inneneinheit | |||||
| Integrierte Sekundärpumpe/Heizkreispumpe Heiz-/Kühlkreis 1 (PWM) | W | 63 | ||||
| Energieeffizienzindex EEI der Umwälzpumpen | ≤ 0,2 | |||||
| Regelung/Elektronik | W | 5 | ||||
| Max. Anschlussleistung Betriebskomponenten 230 V~ | W | 1000 | ||||
| Außeneinheit | ||||||
| Ventilator | W | 140 | ||||
| Regelung/Elektronik | kW | 2,3 | ||||
| Mobile Datenübertragung | WLAN | Übertragungsstandard | IEEE 802.11 b/g/n | |||
| Frequenzband | MHz | 2400 bis 2483,5 | ||||
| Max. Sendeleistung | dBm | +15 | ||||
| Low-Power-Funk | Übertragungsstandard | IEEE 802.15.4 | ||||
| Frequenzband | MHz | 2400 bis 2483,5 | ||||
| Max. Sendeleistung | dBm | +6 | ||||
| Kältekreis | Arbeitsmittel | R290 | ||||
| Sicherheitsgruppe | A3 | |||||
| Füllmenge | kg | 1,2 | ||||
| Treibhauspotenzial | GWP | 0,02 | ||||
| CO2-Äquivalent | t | 0,000024 | ||||
| Verdichter (Vollhermetik) | Typ | Doppelrollkolben | ||||
| Öl im Verdichter | Typ | HAF68 | ||||
| Ölmenge im Verdichter | l | 0,840 / ±0,020 | ||||
| Zulässiger Betriebsdruck | Hochdruckseite | bar / MPa | 30,3 / 3,03 | |||
| Niederdruckseite | bar / MPa | 30,3 / 3,03 | ||||
| Zulässiger Betriebsdruck | Sekundärseitig | bar / MPa | 3 / 0,3 | |||
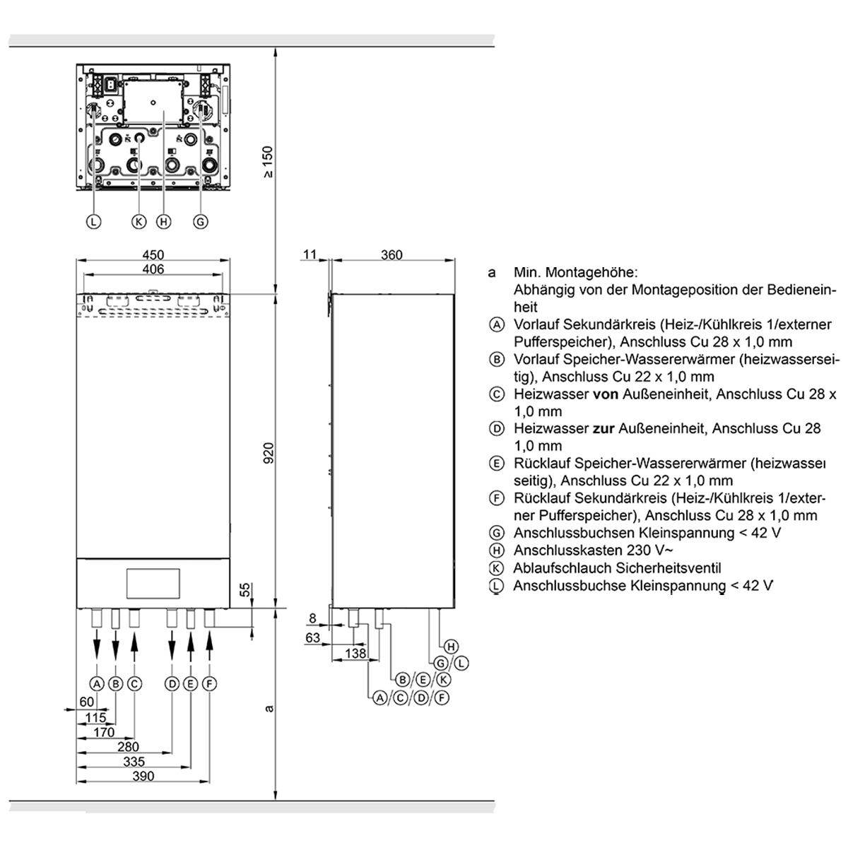
| Anschlüsse | Heizwasservorlauf/-rücklauf Heiz-/Kühlkreise o. externer Pufferspeicher | mm | Cu 28 x 1,0 | |||
| Heizwasservorlauf/-rücklauf Speicher-Wassererwärmer | mm | Cu 22 x 1,0 | ||||
| Heizwasservorlauf/-rücklauf Außeneinheit | mm | Cu 28 x 1,0 | ||||
| Länge der Verbindungsleitung | Inneneinheit - Außeneinheit | m | 5 bis 20 | |||
| Schallleistung der Außeneinheit bei Nennwärmeleistung (Messung in Anlehnung an EN 12102/EN ISO 3744) | Bewerteter Schallleistungs-Summenpegel bei A7/W55 | ErP | dB(A) | 51 | ||
| Max. | dB(A) | 56 | ||||
| Geräuschreduzierter Betrieb (Stufe 2) | dB(A) | 52 | ||||
| Energieeffizienzklasse nach EU-Verordnung Nr. 813/2013 | Heizen durchschnittliche Klimaverhältnisse | Niedertemperaturanwendung (W35) | A+++ | |||
| Mitteltemperaturanwendung (W55) | A++ | |||||
| Abmessungen | Inneneinheit | Gesamtlänge | mm | 360 | ||
| Gesamtbreite | mm | 450 | ||||
| Gesamthöhe | mm | 920 | ||||
| Außeneinheit | Gesamtlänge | mm | 600 | |||
| Gesamtbreite | mm | 1144 | ||||
| Gesamthöhe | mm | 841 | ||||
| Gesamtgewicht | Inneneinheit | Leer | kg | 47 | ||
| Befüllt (max.) | kg | 75 | ||||
| Außeneinheit | kg | 162 | ||||
| Farbton | Inneneinheit | Vitopearlwhite | ||||
| Außeneinheit | Vitosilber | |||||
| Hersteller | Viessmann | |||||
| Serie | Vitocal 150-A | |||||
| Typ | AWO-M-E-AC 151.A04 | |||||
| Artikel-Nr. | Z026430 | |||||
Herstellerinformationen:
Viessmann Climate Solutions SE
Viessmannstraße 1
35108 Allendorf
Deutschland
E-Mail: info@viessmann-climatesolutions.com
Weiterführende Links zu "Viessmann Vitocal 150-A Luft-Wasser-Wärmepumpe 4,0kW Z026430 Monoblock AWO-M-E-AC 151.A04"
Verfügbare Downloads:
Allgemeine Sicherheitshinweise: Zur Vermeidung von Personen- und Gesundheitsschäden dürfen Montage, Erstinbetriebnahme, Inspektion, Wartung und Instandsetzung nur durch autorisiertes Fachpersonal (Fachbetrieb oder Installateurunternehmen der Heizungs- / Sanitärbranche) erfolgen!
Bestimmungsgemäße Verwendung:
Bitte beachten Sie generell bei Installations- und Montagearbeiten die beigefügten Einbau-, Bedienungs- und Wartungsanleitungen sowie die Produkt- und/oder Systemzulassungen aller Anlagenkomponenten. Beispielsweise ist es bei Wärmeerzeugern regelmäßig der Fall, dass nur für diese Heizung zugelassene Abgasanlagen verwendet werden dürfen. Zur bestimmungsgemäßen Verwendung gehört auch die Einhaltung der Inspektions- und Wartungsbedingungen, die ebenfalls in den oben genannten Unterlagen enthalten sind.
Elektroheizgeräte und Durchlauferhitzer mit Starkstromanschluss (400 V) dürfen nur durch den jeweiligen Netzbetreiber oder durch ein in das Installateurverzeichnis des Netzbetreibers eingetragenes Installationsunternehmen installiert werden!
Elektrogeräte mit Drehstromanschluss (3~/400 V) und "nicht steckerfertige Geräte" müssen von einem Fachbetrieb installiert werden. Geräte mit einer Nennleistung von mehr als 12 kW bedürfen vor der Erstinstallation der Zustimmung des Netzbetreibers.
Die Installation, Inspektion, Wartung und Reparatur von Gasgeräten sowie Gaseinstellungen selbst dürfen nur von einem Fachhandwerker durchgeführt werden!
Bei der WEEE Nummer handelt es sich um die vergebene Registriernummer, die als Nachweis der im Herstellungsland vorgenommenen Registrierung des Herstellers, der Marke und der elektrischen oder elektronischen Geräteart gilt. Sie dient damit gleichzeitig der Identifizierung des Herstellers.